カテゴリー
  • 住宅設備用配管資材 >
  • 排水用配管資材 >
  • 上下水道用資材 >
  • 一般配管資材 >
  • 特殊配管資材 >
  • 空調機器・ポンプ・衛生器具 >
  • 水栓・便器・流し・浴室用部材 >
  • 住宅設備機器・宅配ボックス・庭園商材 >
  • 機械・電動工具 >
  • 数量限定 >
  • アウトレット品 >
  • 米・穀物 >
  • 10,800円以上の購入で
    配送料無料

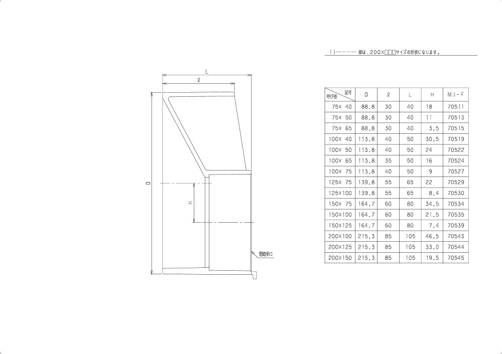
    塩ビ管用特殊継手 VUHB(偏芯ブッシング)

    希望小売価格:¥ 313 ~ ¥ 1,069 税込

    ¥ 201 ~ ¥ 685 税込

    商品コード: 5061 ~ 5071

    数量

    ●前澤化成工業
    ●VUHB
    ●偏芯タイプのVUブッシングです。

    ご注意
    ・複数の商品をご注文の場合、到着日時指定は最も納期の長い商品に合わせた日時となります。
    ・発送は土日祝日を除いた平日のみとなります。

    ご注文方法の詳細はこちらのお買い物ガイドをご覧ください。

    継手規格表
    規格 サイズ
    75×50
    75×65
    100×50
    100×65
    100×75
    125×100
    150×100
    150×125
    はプラスチック・マスマンホール協会規格品です。